Company logo
使用说明
 
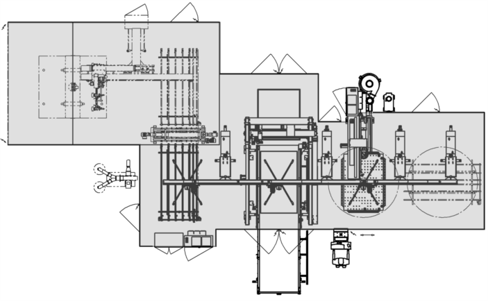
危险区域
危险区域在图中用灰色标示。
危险区域