切割桥:角度设置
切割桥的角度设置
检查角精度
切割桥角度检查
- a)
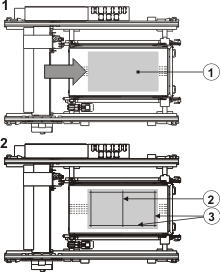
- 将一块约为允许的最大玻璃尺寸的矩形浮法玻璃板 (1) 传送到切割台上,然后临时进行定位。
- b)
- 在外边缘以内约 30 mm 处切割一个矩形 (3),然后在玻璃 (2) 的中心切割出一条分离切口。
- a)
- 进入危险区时请遵照章节 进入危险区域。
- a)
- 用毡尖笔对中心切口 (5) 进行标记,以保证不会弄混切割边缘。
切割桥角度误差
- b)
- 分开板材。
- c)
- 折弯中心切口。
- ⇨
- 这样大约形成了两个正方形 (4) 和 (6)。
- d)
- 像折纸一样,将两个正方形在中心切口处折叠起来(两个玻璃上表面贴合在一起)。
- e)
- 在中心切口处对齐两个玻璃板,让中心切口的边缘切口边相互平齐。
- a)
- 测量两个玻璃边缘之间的偏差 (X)。
- ⇨
- 当例如边长为 1 m 时,角度误差不能大于 0.2 mm。
- ➢
- 当轴不垂直时:
- a)
- 测量并记录两个玻璃边缘之间的偏差 (X)。
- a)
- 遵照章节 离开危险区域 中的说明离开危险区域。
修正角度误差
前提条件
夹紧装置
- a)
- 关闭电脑操作系统。
- a)
- 进入危险区时请遵照章节 进入危险区域。
- a)
- 关闭设备主开关;用个人挂锁锁住主开关。
修正角度误差 (1)
- b)
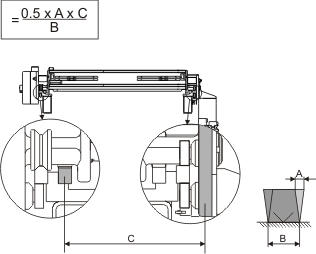
- 手动推移切割桥,这样就能很好地从侧面操作夹紧螺栓 (1)。
- c)
- 移除增量式编码器
修正角度误差 (2)
- d)
- 取出电机盖板的固定螺栓。
- e)
- 将夹紧装置安插在增量式编码器轴上,然后用夹紧螺栓将其拧紧。
- f)
- 将夹紧装置夹在增量式编码器轴上。
- ⇨
- 这样,机器的驱动侧就被锁止了。
- ➢
- 为了监控修正情况:
- a)
- 在机器能源侧切割桥的挡板上安装千分表。
- b)
- 将千分表大约定位在测量区域的中心。
计算修正值
修正值的计算
- ▪
- 所测偏差 (A) 的一半
除以
- ▪
- 正方形的边长 (B)
乘以
- ▪
- 齿杆(驱动侧)到侧挡板(能源侧 - 固定千分表的部位)的距离。
修正角度误差 (3)
- a)
- 松开联轴器上的夹紧螺栓 (1)。
- b)
- 根据算得的修正值(从千分表读取)在侧挡板上推动切割桥。
- c)
- 均匀地将夹紧螺栓 (1) 拧紧到 65 Nm。
- d)
- 安装增量式编码器。
- e)
- 根据本章中的说明设置增量式编码器。
- f)
- 移除所有工具和检测设备。
- a)
- 遵照章节 离开危险区域 中的说明离开危险区域。
- a)
- 打开设备的主开关。
功能检查
- a)
- 重复 «检查角精度» 的过程
- ➢
- 确定有角度误差时:
- a)
- 重新进行设置。








