带有切割折断工具的工具滑车
更换导向辊
前提条件:
- ➢
- 位于切割桥的能源控制侧:
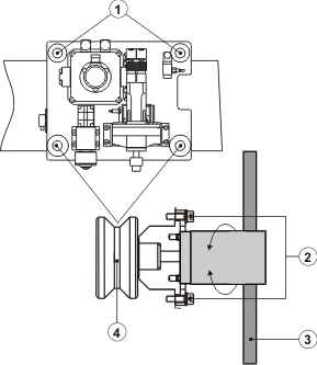
工具滑车 - 更换导向辊
- a)
- 将中心安装的导向辊 (4) 从工具滑车上推至盖板 (1) 的开口前。
- b)
- 在该位置上使用起重机减轻工具滑车的载荷。
- c)
- 松开偏心安装的导向辊 (7) 的内六角螺栓 (5)。
- d)
- 将专用工具 (6) 插入偏心衬套的孔中并打开偏心轮。
- e)
- 通过盖板的开口拧出中心安装的导向辊的内六角螺栓 (3);为此需使用带内六角的角度螺丝刀 (2)。
- f)
- 向外倾斜工具滑车。
- g)
- 拧出中心安装的导向辊 (4) 的内六角螺栓 (5)。
- h)
- 移除中心安装的导向辊 (4)。
- i)
- 用清洗汽油清洁所有孔;然后用干燥、干净的压缩空气将其吹净。
- j)
- 小心地向下放工具滑车。
- k)
- 拧出偏心安装的导向辊 (7) 的内六角螺栓 (3) 和 (5)。
- l)
- 移除偏心安装的导向辊 (7)。
- m)
- 用清洗汽油清洁所有孔;然后用干燥、干净的压缩空气将其吹净。
- n)
- 装上新的偏心安装导向辊 (7)。
- o)
- 拧入内六角螺栓 (5) 和 (3) 并拧紧。
- a)
- 抬起工具滑车并小心地将其放在下部导向杆上。
- b)
- 将工具滑车调整至与拆卸时相同的倾斜位置。
- c)
- 装上新的中心安装导向辊 (4)。
- d)
- 拧入内六角螺栓 (5) 并拧紧。
- e)
- 将工具滑车调至竖直。
- f)
- 通过盖板的开口装上中心安装的导向辊的内六角螺栓 (3) 并拧紧;为此需使用带内六角的角度螺丝刀 (2)。
调整导向辊
前提条件:
工具滑车 - 调整导向辊
- a)
- 拧紧上部导向辊 (1)。
- b)
- 将下部导向辊 (4) 放在棱形导向装置上。
- c)
- 稍微松开内六角螺栓 (2)。
- d)
- 将专用工具 (3) 插入偏心衬套的孔中并转动,直至导向辊靠在导向杆上。
- e)
- 拧紧内六角螺栓 (2)。
- a)
- 遵照章节 离开危险区域 中的说明离开危险区域。



