折断工具:气缸
更换气缸
- a)
- 将气动系统调为无压力状态。
- b)
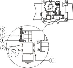
- 脱开气缸上的气动软管 (4) 和 (5)。
更换气缸
- c)
- 在外壳下部画上一个清晰的标记 (1)。
- d)
- 松开外壳上的螺栓 (2)。
- e)
- 移除气缸 (7) 的螺栓 (6)。
- f)
- 将气缸 (7) 从一侧拉出。
拆卸气缸
- g)
- 注意气缸和滑块的位置!
将旧气缸的滑块换到新气缸上。
- h)
- 移除滑块 (9) 的沉头螺栓 (8)。
- i)
- 将滑块 (9) 安装在新气缸上,并使用沉头螺栓 (8) 固定。
- j)
- 从侧面将新气缸推回,然后使用螺栓 (6) 固定。
- k)
- 将外壳放置在标记 (1) 处。
- l)
- 拧入外壳的螺栓 (2) 并将其拧紧。
- m)
- 连接气动软管 (4) 和 (5)。
- a)
- 遵照章节 离开危险区域 中的说明离开危险区域。
调整折断压力
用于折断玻璃的折断压力受到比例阀、压力传感器和控制电子元件的控制。折断压力的调节可通过在平板电脑输入参数实现 - 为此请见章节 切割力和刀轮角度。
降下工具
压缩空气从切割台的维护单元出来,经过比例阀和压力传感器后到达折断工具。
带有球滚轮的活塞降下。
提升工具
可在气缸的进气节流阀 (3) 处调节提升速度。
带有球滚轮的活塞升起。
- a)
- 在释放机器/设备用于生产前,进行功能检查。




