更换接近开关
使用接近开关可以监控曲线切割和折断机的移动路径(最大行程)。
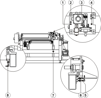
曲线切割和折断机上的接近开关
检查
- a)
- 拆卸前检查以下几点:
- ▪
- 接线(导线松动?)
- ▪
- 插头连接(插头已正确插入?)
- ▪
- 电源(测量电压)
- ▪
- 感应条(位置正确?)
- ▪
- 接触面(接触面污染过于严重导致无法识别信号?)
- ➢
- 如果检查结果表明接近开关已损坏:
- a)
- 更换接近开关。
更换接近开关
安装类型 1
- a)
- 移除连接电缆 (1)。
- b)
- 移除锁紧螺母 (4)。
- c)
- 将损坏的接近开关 (2) 从孔中拔出。
- d)
- 拧出螺母 (3),然后将其拧入新的接近开关。
- e)
- 装入新的接近开关 (2),然后使用螺母 (4) 固定。
安装类型 2
- a)
- 移除连接电缆 (1)。
- b)
- 将损坏的接近开关 (2) 从螺纹 (4) 中拧出。
- c)
- 将螺母 (3) 从损坏的接近开关上移除,然后将其拧入新的接近开关。
- d)
- 将新的接近开关拧入螺纹 (4) 中。
调整开关距离
前提条件:
计算示例
开关距离 «X»:Sn = 4 mm x 0.8 = 3.2 mm
- a)
- 将具有所计算 «X» 距离的厚薄规塞入参考开关 (2) 和感应条 (5) 之间。
- b)
- 使用螺母 (4) 调整距离。
- c)
- 使用螺母 (3) 固定位置。
- d)
- 接上连接电缆 (1)。
- ➢
- 需要调整 «类型 B» 接近开关的距离时:
- a)
- 将具有所计算 «X» 距离的厚薄规塞入接近开关 (2) 和感应条 (5) 之间。
- b)
- 通过转动接近开关 (2) 调整距离。
- c)
- 使用螺母 (3) 固定位置。
- d)
- 接上连接电缆 (1)。
检查接近开关的功能
- a)
- 在 [手动] 菜单中靠近接近开关的开关位置。



