更换 Y 轴线性驱动装置
出厂时,将 Y 轴的线性驱动装置设置为由下列组件构成的整体:
- ▪
- 滚珠丝杠
- ▪
- 驱动电机
- ▪
- 增量式 ENDAT 位置传感器
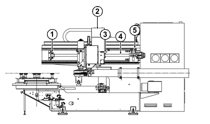
Y 轴的线性驱动装置
拆卸
前提条件:
- a)
- 关闭主开关上的研磨机。
- a)
- 进入危险区时请遵照章节 进入危险区域。
- a)
- 移除黑色和橙色的电机连接电缆。
- b)
- 手动旋转滚珠丝杠,使滑块 (2) 进入中间位置。
- c)
- 移除接头 (3) 上的 8 个螺栓。
- d)
- 移除前方轴承座 (1) 和带滚针轴承的轴承箱。
- a)
- 使用吊车固定驱动单元,防止掉落。
- b)
- 移除后方轴承座 (5) 的 4 个螺栓。
- c)
- 小心使滚珠丝杠 (4) 穿过滑块 (2),借此移除驱动单元。
安装
前提条件:
- ➢
- 为了能够使新驱动单元穿过滑块 (2):
- a)
- 使滑块 (2) 处于适当位置。
- b)
- 从新单元上移除带滚针轴承的轴承箱 (6)。
安装 Y 轴线性驱动装置
- a)
- 小心使滚珠丝杠 (4) 穿过滑块 (2)。
- b)
- 将后方轴承座放在止挡边缘上,并使用 4 个螺栓 (7) 临时固定。
- c)
- 安装带轴承箱 (6) 的滚针轴承。
- d)
- 将接头 (3) 用 2 个螺栓固定在滑块 (2) 上。
调整滚珠丝杠高度
- a)
- 向前移动滑块 (2),使得仍能够触及前方轴承座 (1) 的 4 个螺栓。
- ⇨
- 从而得出前面滚珠丝杠的高度。
- b)
- 以 25 Nm 拧紧前方轴承座 (1) 的 4 个螺栓。
- c)
- 向后移动滑块 (2),使得仍能够触及后方轴承座的 4 个螺栓。
- ⇨
- 从而得出后面滚珠丝杠的高度。
- d)
- 以 210 Nm 拧紧后方轴承座的 4 个螺栓 (7)。
- e)
- 在接头 (3) 上旋入剩余 6 个螺栓。
- f)
- 以 50 Nm 拧紧接头 (3) 上的全部 8 个螺栓。
- g)
- 手动旋转滚珠丝杠,借此将滑块 (2) 从一个终端位置移动至另一个。
- h)
- 在此确保滑块均匀运行。
- i)
- 相应地插入电机连接电缆。
- a)
- 遵照章节 离开危险区域 中的说明离开危险区域。
- a)
- 打开主开关上的研磨机。
- b)
- 参照所有机器轴。
- c)
- 调整 Y 轴的零点。参见章节 调整 Y 轴零点(无调整规) 或 调整 Y 轴零点(有调整规)。



