更换传送带
前提条件:
- a)
- 分离真空软管。
- b)
- 操作 [夹紧/松开切割台支架] 开关松开夹紧装置。
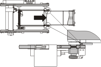
伸出切割台
- a)
- 伸出切割台,直至拉出限制装置处。
松开边框并从导向装置中拉出
- b)
- 旋松滚花螺钉 (1)。
- c)
- 拧出滚花螺钉 (4),然后将其拧入为其设计的螺纹中。
- d)
- 握住滚花螺钉 (4) 从导向装置中拉出边框 (2)。
- e)
- 将带有掰边板的边框放置在平坦表面上。
- f)
- 使用合适的支撑装置在两侧对切割台进行支撑。
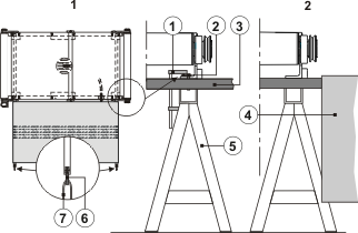
操纵杆在较靠外的位置,包含螺栓
- a)
- 转动操纵杆 (1) 将螺栓卷入。
- b)
- 将切割台从机器上拉开,并用螺旋夹钳将其固定在支撑装置上。
- c)
- 拆下拉出单元。
松开并移除张紧滚筒。
切割台
- ➢
- 位于张紧滚筒的两侧:
松开张紧滚筒
- a)
- 松开锁紧螺母 (3)。
- b)
- 通过完全回旋张紧螺栓 (4) 放松传送带。
- c)
- 拧下圆柱头螺栓 (2)。
- d)
- 移除金属片 (1)。
- ➢
- 在机器的能源侧:
松开张紧滚筒 [图 2]
- a)
- 拧出定位辊 (7) 的圆柱头螺栓 (6)。
- b)
- 移除定位辊 (7)。
- c)
- 从切割台的槽中拔出轴承外壳 (8)。
- ➢
- 在机器的参考侧:
- a)
- 从切割台的槽中拔出轴承外壳 (8)。
- a)
- 移除张紧滚筒。
- b)
- 移除传送带 (5)。
安装新的传送带
安装新的传送带
- a)
- 使用切割台上的螺栓 (2) 安装支架 (3)。
- b)
- 在每个支架上都安装一个钩环 (6)。
- c)
- 将皮带 (7) 穿过钩环 (6) 并固定在起重设备上。
- ➢
- 在机器的参考侧:
- a)
- 松开并移除螺旋夹钳 (1)。
- b)
- 移除支撑装置 (5)。
- a)
- 使用起重设备稍稍抬升切割台。
- b)
- 将新的传送带 (4) 穿在切割台上并临时对齐。
- ➢
- 在机器的参考侧:
- a)
- 将支撑装置安放在切割台下方。
- b)
- 将切割台降到支撑装置上。
- c)
- 使用螺旋夹钳固定切割台。
- d)
- 注意,应将切割台下方的传送带置于专门设计的导向装置中;从下方进行支撑,不要让其下垂。
安装张紧滚筒
- ➢
- 在机器的参考侧:
- a)
- 将轴承外壳塞入切割台的槽中。
- ➢
- 在机器的能源侧:
- a)
- 将轴承外壳塞入切割台的槽中。
- b)
- 安装定位辊。
- c)
- 拧入定位辊的圆柱头螺栓。
- ➢
- 位于张紧滚筒的两侧:
- a)
- 安装金属板。
- b)
- 拧入圆柱头螺栓。
- c)
- 在传送带滚筒上位传送带定中心。
- d)
- 安装拉出单元。
- e)
- 小心地将切割台的定位辊装在导向装置上。
- f)
- 将切割台移动至拉出限制装置后方。
- g)
- 将操纵杆转至内侧位置。
- ⇨
- 螺栓伸出。
张紧传送带
- ➢
- 在传送带 (1) 的两侧:
张紧传送带
- a)
- 画上标记 (2)。
- b)
- 从该部位起量取 1000 mm,画上第二个标记 (2)。
- c)
- 松开锁紧螺母 (4)。
- d)
- 均匀转动张紧螺栓 (5)(张紧滚筒会被移动)直至传送带达到 1.3...2 mm 的延长量。
- e)
- 拧紧锁紧螺母 (4)。
- f)
- 安装带有掰边板的边框;为此请见章节 更换掰边板。
- g)
- 小心地将切割台移动至缓冲区;注意让齿轮相互啮合。
- ⇨
- 驱动电机与小齿轮耦合。
- h)
- 操作 [夹紧/松开切割台支架] 开关让夹紧装置夹紧。
- ⇨
- 如果切割台位于工作位置上,接近开关会向机器控制器发出信号。
- i)
- 连接真空软管。
- a)
- 遵照章节 离开危险区域 中的说明离开危险区域。
- a)
- 打开机器/设备主开关。
功能检查
- a)
- 让传送带运行 2 小时。
- ➢
- 如果传送带在某侧发生偏离:
- a)
- 通过转动螺栓将张紧滚筒推向机器一侧,直至皮带运行被修正。











